- 고양 원당 더샵 포레나 분양정보 목차
고양 원당 더샵 포레나 분양정보
[고양 원당 더샵 포레나 분양정보]
위치 : 경기도 고양시 덕양구 주교동 559-1번지 일원
시공사 : (주)포스코 건설, (주)한화건설
시행사 : 원당 1구역 주택재개발 정비사업
용적률 : 279.5%
건폐율 : 14.9%
구성 : 지하 3층 ~ 지상최고 35층 / 17개동
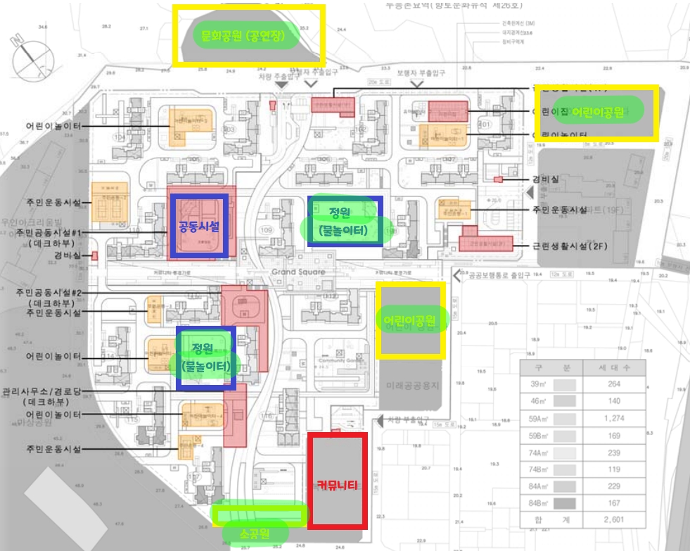
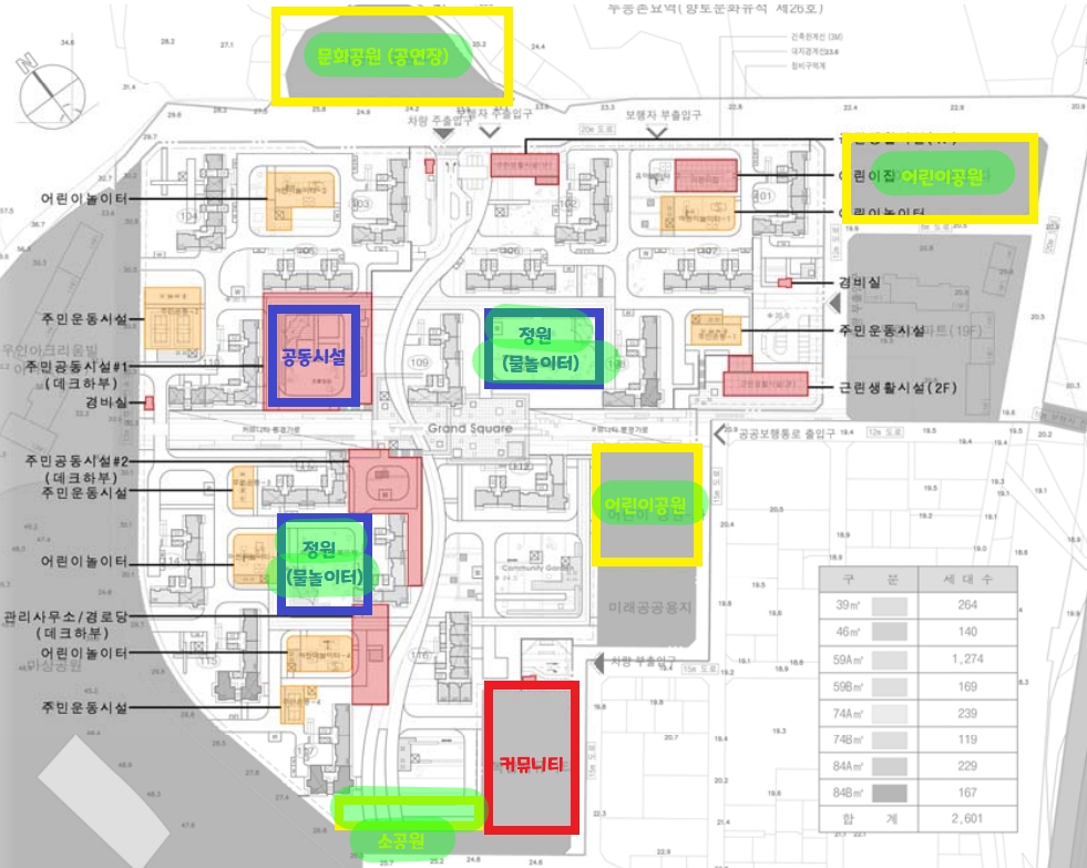
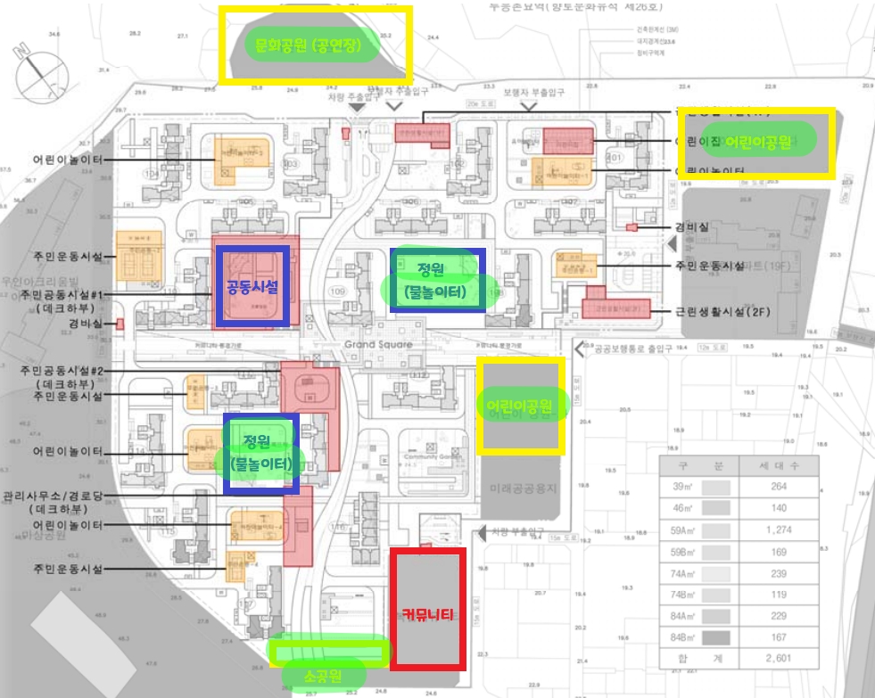
세대 수 : 2,601세대 중 일반분양 635세대
- 2007년 9월 정비구역 지정
- 2010년 12월 추진위원회 승인
- 2011년 8월 조합설립인가
- 2011년 11월 시공사선정
- 2015년 9월 사업시행인
- 2021년 8월 관리처분인가
- 2022년 하반기 이주 완료

[고양 원당 더샵 포레나 세대구성]
39m2 : 264세대
46m2 : 140세대
59m2 : 1,443세대
74m2 : 358세대
84m2 : 396세대
전체 : 2,601세대


[고양 원당 더샵 포레나 입지정보]
교통환경
행산역 KTX, 지하철 3호선 원당역, 대곡역 인근 위치, GTX-A 개통 예
지역 내 6개 버스 노선 운행 중
원당로, 호국로, 마상로, 고양대로, 충장로, 새빛로, 어울림로, 수도권 제 1순환고속도로, 고양 ic,
평택파주고속도로, 인천국제공항고속도로, 올림픽대로, 강변북로 등

생활환경
하나로마트 고양 축협 본점, 하나로마트 송포 농협 가좌점, 하나로마트 지도 농협 화정점, 우일종합
시장
동국대학교 일산 불교병원, 의료법인명지의료재단명지병원, 고양시덕양구보건 등 종합병원 위치
덕양구청, 세무서, 행정복지센터, 우체국
고양국민체육센터, 고양시문예회관, 어울림생활문화센터, 고양어울림누리어울림마당, 화정문화의
거리 등
자연환경
음악공원, 화수공원, 은빛공원, 자전거공원, 마상근린공원, 성라공원, 지도공원, 서삼릉공원(여의도
0.4배 규모), 성사체육공원, 서삼릉청소년야영장 등
교육환경
원당초등학교(배정 예정), 원당중학교, 성사중학교, 삼송 1중학교(개교 예정), 성사고등학교, 화정 고등학교,
화수 고등학교, 고양시립원당도서관 등
주변시세
원당역 롯데캐슬 스카이엘 25평형(59m2) : 5억 8천만 원(평당 2,440만 원)
휴먼빌 일산 클래스원 34평형(84m2) : 7억 4천만 원(평당 2,176만 원)
원당 이편한세상 34평형(84m2) : 5억 9천만 원
레미안휴레스트 34평형(84m2) : 5억 7천만 원
고양주교동 베네하임더힐 36평형(84m2) : 5억 2천만 원(평당 1,444만 원)
더샵일산엘로이 1~2단지 55평 : 7억 8천만 원(평당 1,418만 원)
더샵일산엘로이 3단지 52평 : 7억 9천만 원(평당 1,519만 원)
고양 원당 더샵 포레나 조합원 분양가
25평(59m2) : 3억 2천만 원(평당 1,312만 원)
34평(84m2) : 4억 2천만 원(평당 1,235만 원)
-> 일반분양 84m2 기준 : 약 8억 5천만 원 대(평당 2,500만 원 이상 예정)
https://map.naver.com/p/entry/place/1461859766?c=15.00,0,0,0,dh
네이버 지도
원당1주택재개발
map.naver.com
'부동산정보' 카테고리의 다른 글
| LH 임대주택 입주가이드 2 (0) | 2024.07.21 |
|---|---|
| LH 임대주택 입주 가이드 (0) | 2024.07.17 |
| 힐스테이트 레이크 송도 5차 분양정보 (0) | 2024.07.04 |
| 광안 2구역 광안 SK뷰드파인 광안 분양정보 (0) | 2024.06.30 |
| 검단아테라자이 분양정보 (3) | 2024.06.21 |