- 전주 에코시티 더샵 4차 분양 정보 목차
전주 에코시티 더샵 4차 분양 정보
[전주 에코시티 더샾 4차 분양정보]
위치 : 전북 특별자치도 전주시 덕진구 송천동 2가 1317
사업명 : 전주 에코시티 16BL 공동주택 신축공사
시공사 : 포스코 건설
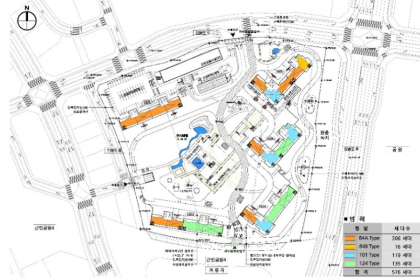
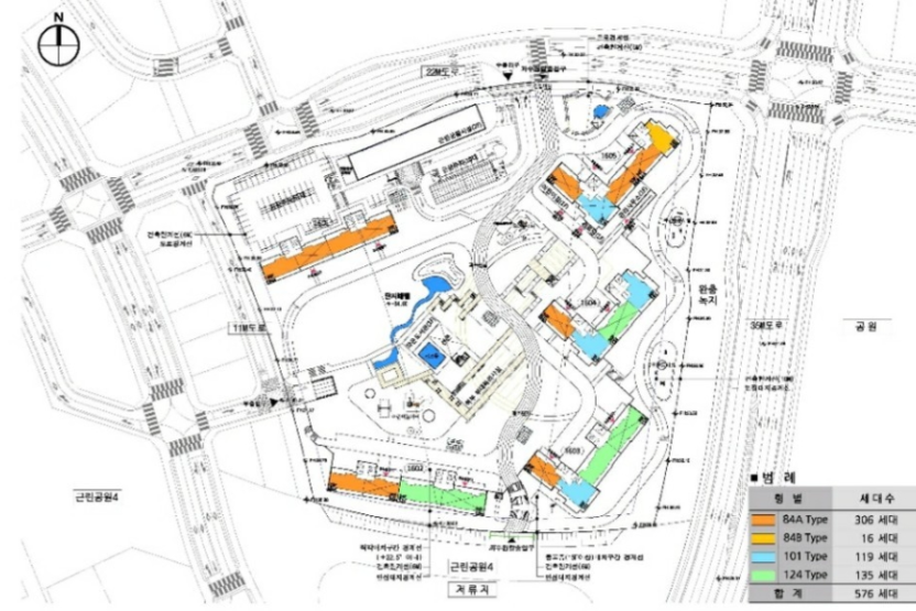
세대 구성 : 지하 2층 ~ 지상 최고 30층 총 5개동
세대 수 : 576세대
건폐율 : 16%
용적률 : 244.70%
주차대수 : 총 939대(아파트 928대, 세대 당 1.61대, 근린생활시설 11대)
평형 별 세대구성
84m2 A타입 : 305세대
84m2 B타입 : 16세대
101m2 : 117세대
110m2 : 1세대
124m2 : 133세대
141m2 : 2세대
161m2 : 2세대
입주시기 : 2027년 1월 예정
예상분양가 : 평당 1,600 ~ 1,700만

[전주 에코시티 더샵 4차 입지정보]
교통환경
전주역 KTX,(차로 10분 거리) 호남고속도로 전주IC, 익산포항고속도록 완주 IC인접
->익산, 군산, 광역 이동 편리
백석동로, 세병로, 과학로 등
전주 제 1일반산업단지, 제 2일반산업단지, 전주친환경복합단지, 전주탄소소재국가산업단지, 플랙
스폼 코리아 전주공장
생활환경
대형마트 : 이마트 에코시티점, 롯데마트 송천점, 하나로마트 등
의료시설 : 전북대학교 병원(차로 10분 거리)
그외 : 금융시설, 롯데마트, 먹자골목, 대형 쇼핑 시설, 전주동물원, 전주월드컵경기 등
자연환경 : 신흥저수지, 세병공원, 오송제, 천마산, 건지산, 덕진체련공원
교육환경
전주 신동 초등학교(배정), 전주 화정초등학교, 전주 자연초등학교,전주 덕진중학교, 전주중학교,
전주 덕일중학교, 전라중학교(2024년 3월 설립 예정), 전주 솔내고등학교, 전라고등학교, 전북대학교
전주 캠퍼스 등
송천도서관, 학원가 접근성 뛰어남

[전주 에코시티 더샵 4차 청약정보]
1. 한국에 거주하는 세대주 및 세대원 모두 청약 가능
- 만 19세 이상, 청약통장 6개월 이상 및 거주 지역별 예치금 충족 시
2. 전주 거주기간 1년 이상(등본상 거주기간 - 외국 체류기간 제외)
3. 청약통장 가입기간 6개월
- 청약통장 가입기간 6개월 이상 지역별, 면적별 예치금 만족 시 일반공급 1순위 및 특별공급
청약가능
4. 주택 소유 여부와 관계없이 청약 가능(다주택자 1순위 청약 가능)
5. 84m2 A타입 - 305세대(85m2 이하)
84m2 B타입 - 16세대
청약 200만 원 이 예치금 충족 시 청약 가능
101m2 - 119세대(102m2 이하)
청약 300만 원 이상 예치금 충족 시 청약 가능
124m2 - 133세대(135m2 이하)
청약 400만 원 이상 예치금 충족 시 청약 가능
-> 모든 면적 청약 시 500만 원 이상 예치금 충족 시 청약 가능
특별공급 가점 40%(무주택 시)
추첨제 60%(주택유무 상관X, 세대주 상관X)
6. 특별공급 : 생애최초 20%, 신혼부부 20%, 다자녀 10%,(2명 이상), 기관추천10%(34세대), 노부모 3%
84m2 특별공급
84m2 305세대 중 기관추천 32세대
84m2 16세대 중 기관추천 2세대
전체 321세대 중 특별공급 63% 제외한 나머지 일반 분양 119세대
84m2 이상 타입은 전체 추첨제로 진행


1. 신혼부부, 생애최초 각 20% 중 신생아 공급 20% 우선 추진
1) 신혼부부
- 신생아 우선공급 15%(가구원 수 월 평균 소득 100% 이하, 2세 미만)
- 신생아 일반공급 5% (가구원 수 월 평균 소득 100 ~ 140%, 2세 미만)
2) 생애최초
- 신생아 우선공급 15%(가구원 수 월 평균 소득 130% 이하, 2세 미만)
- 신생아 일반공급 5% (가구원 수 월 평균 소득 130 ~ 160%, 2세 미만)
'부동산정보' 카테고리의 다른 글
| 이천자이 더레브 분양정보 (0) | 2024.05.11 |
|---|---|
| 두산위브제니스 센트럴시티 분양 정보 (0) | 2024.05.09 |
| 탕정 푸르지오 센터파크 분양 정보 (1) | 2024.05.05 |
| 서울 마포 자이 힐스테이트 분양 정보 (1) | 2024.05.02 |
| 아크로 VS 르엘? 한남 5구역 브랜드 승자는? (1) | 2024.04.16 |